Solar Decathlon

Doppelt erfolgreiche Teilnahme am renommierten US-Hochschulwettbewerb

30.06.2022

Der Solar Decathlon ist ein vom US-amerikanischen Energieministerium ausgeschriebener internationaler Hochschulwettbewerb, bei dem 20 Universitätsteams weltweit dazu eingeladen werden, ihren Prototypen eines Hauses, das seine Energie allein aus der Sonne bezieht, in einer Bauausstellung auf der National Mall in Washington D.C. der Öffentlichkeit vorzustellen. Im Folgenden treten die Teams in einen 10 Disziplinen umfassenden Wettkampf gegeneinander an. Studierende aus den Fachbereichen Architektur sowie Elektrotechnik und Informationstechnologie der TU Darmstadt konnten sowohl den Wettbewerb in 2007 als auch den darauf folgenden in 2009 gewinnen.

Die beiden Preissieger von 2007 (re) und 2009 (li) stehen heute am Campus Lichtwiese der TU Darmstadt.

Das Solarhaus der TU Darmstadt war 2007 der erste Wettbewerbsbeitrag einer deutschen Universität am internationalen Hochschul-Wettbewerb Solar Decathlon. Das Haus wurde für zwei Personen entworfen und folgt den Prinzipien einer einfachen, flexiblen Wohnlösung. Es schafft fließende Übergänge zwischen Innen und Außen sowie innerhalb des Hauses.

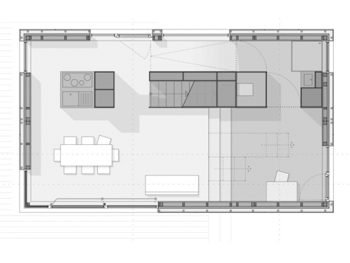
Der Entwurf basiert auf drei Grundideen. Dies ist zum einen das Prinzip der Schichtung: Der Grundriss ist in verschiedene Zonen unterteilt, die sich wie Zwiebelschalen um einen inneren Kern legen. Die unterschiedlich temperierten Schichten erlauben eine differenzierte Nutzung des Grundrisses je nach Jahreszeit. Somit ist das Solarhaus zugleich Sommer- und Winterhaus. Zweitens kommt ein Plattformkonzept für Möbel und Technik zum Tragen, ähnlich wie es der Autobau vorgemacht hat: Ein doppelter Boden nimmt die technischen Komponenten des Hauses auf, die im Plug-In-Verfahren in das Gesamtsystem eingefügt werden können. Ein Technikraum ist nicht mehr notwendig. Der doppelte Boden dient auch als Stauraum für die Möbel, was entscheidend für das dritte Thema des Entwurfs ist: Es soll ein ruhiger Raum geschaffen werden, der in seiner eigentlichen, reinen Form wahrgenommen werden kann. Die Raumnutzung bleibt so flexibel und ist in dem Sinne auch nachhaltig.

Die Wettbewerbsvorgaben erforderten, dass mit der in die Häuser integrierten Solartechnik alle nach damaligem (amerikanischen) Standard zum Leben notwendige Energie generiert werden konnte – einschließlich der zum Betrieb eines Elektroautos notwendigen Elektrizität. Der Gewinn der Teildisziplin „Energiebilanz“ ist das Resultat einer hervorragenden Ausgewogenheit von architektonischen und technischen, also passiven und aktiven Maßnahmen und bildete die Grundlage für den erfolgreichen Wettbewerbsabschluss.

Nach Rückkehr des Gebäudes aus den USA wurde es zunächst an verschiedenen Orten ausgestellt (DEUBAU, Essen und Robert Bosch GmbH, Stuttgart), ehe es 2008 am heutigen Standort auf dem Campus Lichtwiese wieder aufgebaut wurde.

Jury Report,
Washington im Oktober 2007

Das deutsche Team trat beim Solar Decathlon mit der Hoffnung an, einen prägenden Eindruck bei den Menschen zu hinterlassen und es steht außer Frage, dass sie dies geschafft haben.

Das surPLUShome der Technischen Universität Darmstadt hatte es zum Ziel, innovatives, nachhaltiges und energieeffizientes Design zu demonstrieren und im täglichen Leben zu verankern. Es besitzt zahlreiche Elemente, die es dem Nutzer ermöglichen, sich von einem klassischen Wohnverständnis zu lösen und neue effiziente Lebensstile zu generieren. Dieser Mehrwert begründet den Namen des Hauses: surPLUS Home.

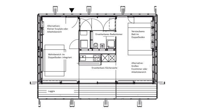
Das Einraumkonzept definiert verschiedene atmosphärische Raumzonen. Zwei Ebenen im Erdgeschoss und die eingeschobene Galerie ermöglichen einen offenen, großzügigen Wohnraum. Trotzdem gibt es private Rückzugsbereiche. Das integrative Design und die Flexibilität des Riegels, welcher einen Großteil der Technik, die Küche, das Bad, Stauraum und die Treppe zur Galerie vereint, erhöhen die Wohnqualität maßgeblich.

Auch das Energiekonzept des Plusenergiehauses vereint dieses hohe Maß an Wohnkomfort mit einer intuitiv bedienbaren Haussteuerung. Herkömmliche Gebäude haben einen Energiebedarf von 80-100 kWh/m². Das surPLUShome hat mit seinen 54 kWh/m² einen rund 50% niedrigeren Energiebedarf und entspricht dem deutschen Passivhaus-Standard. Der gesamte Primärenergiebedarf, einschließlich der Photovoltaik-Anlage auf dem Dach und der Fassade entspricht 257 kWh/m² a (mit deutschen Primärenergie-Faktoren berechnet). Das macht 100 % an Einsparungen und 250 % an Gewinn, es produziert also etwa zwei Mal soviel Energie als benötigt wird. Dabei werden die energiesparenden und -erzeugenden Systeme hohen ästhetischen Ansprüchen gerecht.

Die Teilnahmen am Solar Decathlon 2007 und 2009 wurden federführend am Fachbereich Architektur, am ehemaligen Fachgebiet Entwerfen und Energieeffzientes Bauen von Professor Manfred Hegger betreut und ermöglicht. Die Gebäude entstanden in enger Zusammenarbeit mit dem ebenso ehemaligen Fachgebiet Regenerative Energien am Fachbereich Elektrotechnik und Informationstechnologie von Professor Thomas Hartkopf. Ein Team aus wissenschaftlichen Mitarbeiter*innen begleitete die zwei hochmotivierten studentischen Teams bei der Entstehung der Häuser, die in den Lehrplan der Studierenden eingebunden wurde.

Für drei Semester widmeten sich die Teams von der ersten Skizze über die Materialisierung und die Akquise bis hin zum Bau und der Präsentation des Hauses konkreten Phasen eines Bauprozesses. In diesem Rahmen erhielten sie einmalige Einblicke und erlernten Fähigkeiten, die in konventionellen Lehrplänen nicht erfahrbar sind. Das Projekt entstand in Zusammenarbeit mit zahlreichen Unternehmen, insbesondere seien Bosch und Hochtief genannt, sowie durch die Unterstützung der Förderlinie Zukunft BAU des damaligen Bundesministeriums für Verkehr, Bau- Stadtentwicklung.

Beide Solarhäuser stehen nach ihrer Reise in die Vereinigten Staaten und durch Deutschland heute auf dem Campus Lichtwiese. Das surPLUShome wird aktuell (2022) unter der Leitung des Fachgebietes Entwerfen und Stadtentwicklung am Fachbereich Architektur im Rahmen eines eHUBs im emergenCITY LOEWE-Zentrum saniert und anschließend zu Forschungszwecken als Reallabor genutzt. Im Solarhaus von 2007 befindet sich ein Teil der Arbeitsplätze des Büros für Nachhaltigkeit der TU Darmstadt.

Pressemitteilungen:
Forschen für den Katastrophenfall (05.06.2023)

Weiterführende Informationen

Die Solarhäuser der TU Darmstadt wurden in verschiedenen Publikationen detailliert vorgestellt. Das Buch Sonnige Zeiten beschreibt ausführlich Konzept und Wettbewerb des 2007er-Beitrages, das Buch Sonnige Aussichten widmet sich der Entstehung des surPLUShome aus dem Jahre 2009. Weiterhin sind die Projekte auch auf den Seiten des US-Department of Energy beschrieben: Solarhaus 2007 und surPLUShome.